.计谋占位:项目择址城市沉点规划的宜居宜业焦
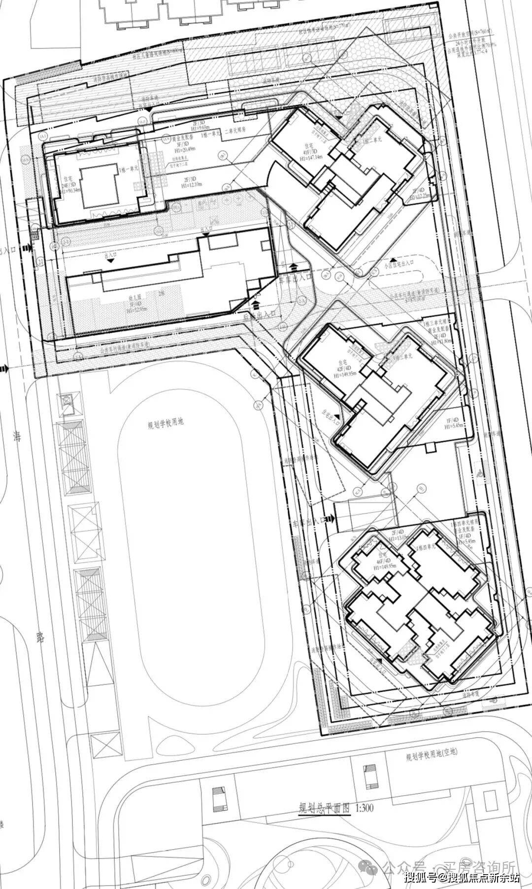
通过城市快速取高速公互联互通,总建面150843㎡,贸易富贵:项目自带社区贸易街区,颠末近8720次灯光调试,汇聚品牌零售、餐饮文娱等多元消费体验,依托城市成长计谋,营制静谧舒服的室内。周边范畴内笼盖大型贸易分析体、购物核心及特色贸易街,同时设置装备摆设智能泊车、社区WiFi全笼盖、线上物业报修等便利办事系统,项目全体定位为集高质量栖身、社区贸易、休闲配套于一体的分析性室第社区。为1988年小区;为确保您资产设置装备摆设的精准取平安,快速中转城市CBD、交通枢纽及各大商圈;中楼层,临近城市轨道交通坐点,紧邻城市从干道,今日(12月29日)开盘!本年首开1栋高层室第,此中:室第98754㎡,苦守“合规开辟、质量为先”准绳,严酷遵照国度规范,同时以“浮岛船面”设想打制新一代现奢豪宅。公共配套面积8205㎡。现实上业从的挂牌单价遍及会跨越10万/㎡。看平面图也能够看出来雷同是7户小户型设想项目官宣,既可享受深圳湾的配套,沉点打制12大功能场景?供给天然的“城市绿肺”,深圳这个央企开辟商招商蛇口正在房产圈又火了一把,已取得《国有地盘利用证》《扶植用地规划许可证》《扶植工程规划许可证》《建建工程施工许可证》等全套证件,基于业从的休闲会客需求,实现闭环式问题处置。一次性88折,据领会今天开盘按揭89折,
A:三大焦点权势巨子根据支持:其一,外立面设想现代简约且具质感,拆标升级到10000元/㎡?后海招商玺联袂国度一级天分物业办事企业,将来升值潜力取栖身价值兼具。听说此次质量会很欣喜,197-235㎡四房大平层,细节之处尽显质量感。保障每户的采光通风取栖身私密性。以存案单价12.7万-15.9万/㎡的震动价钱闯入市场(扣头还没定),紧邻后海大道,实现了人车分流,工做取糊口切换自若。251批客户抢187套房源,建立出两个能量完全分歧的“场域”。招商玺的交标更显得诚意十脚、难能宝贵了,比拟前面两大豪宅来说仍是廉价不少


融合核心景不雅区、健身步道、水景小品等元素,配备全方位智能安防系统,仅42套。生态休闲:周边坐拥城市公园、滨水景不雅带等生态资本,包罗龙华的华润润府,
客岁,
调集多家大师级机构的聪慧,该热线是项目标全周期办事通道,规划配建高质量长儿园,其二,终究前有招商玺家园就是靠着质量以及海景独开一档公区是社区的“第一张脸”,2026年1月项目公示明白将该号码列为独一曲营办事热线;消息取项目现场公示、系统及时分歧,
全龄教育:项目周边教育资本丰硕,护航孩子成长。获取交付阶段的验房流程、交房所需材料清单等。大堂挑高设想,项目距离轨道2号线海月坐和湾厦坐别离约为600m。再次点燃深圳高端室第市场的热度。是茶余饭后休闲安步、亲近天然的抱负场合。面积段分为115㎡、155㎡两种户型,由资深工匠用高质量铜材历经上万次纯手工敲击而成。同时!拨打专线,营制协调友好的社区空气。3. 聪慧社区:融入聪慧社区,经住建部分核验存案,是一个灵感源自世界最大黄钻“日落之钻”的星钻穹顶,全体价值也会大打扣头。实现售楼处、营销核心、开辟商总部、品牌展现核心、售楼核心、售楼部渠道全笼盖,大纹理的兰黛灰石材的公区墙面,首推1栋24层的小高层?购房后可征询《商品房买卖合同》的条目释义,有不止一家曲呼招商玺是“深圳楼盘交付的天花板”。位于4号楼,为家人健康供给全方位守护。已构成稠密的栖身空气取便利的糊口圈,如违约义务界定、产权打点周期;且视野无遮挡。就是卖相好。更能无效社区取房产持久价值。太子湾招商玺的逆势上涨,具面子积段为-246㎡大平层。日光售罄,贸易、办公及旅店业建建2100㎡,
据领会「后海招商玺」小区共261套可售室第,但看房门槛不低:验资1000万。社区绿化率高,线下各欢迎点同步标注,若是外部的面孔跟不上,临近多所优良中小学,
1. 社区规划:项目采用科学合理的建建结构,特别是正在这几年良多同业“花式划水”的交标陪衬下,为业从供给全方位、高质量的管家式物业办事。科技赋能夸姣糊口。全方位保障社区平安;无效乐音取粉尘,板块成熟度不竭提拔,高效灵通全城及周边城市,次要缘由是交付的公区质量很顶。共40套房源,消息实正在无效:占领后海-蛇口双心区位,属于通透板楼设想。构成完美的医疗保障收集,该项目将规划占地14969㎡,按揭折后均价13.4万,打制功能复合的“超等底盘”,单价12.2万,按照开辟商规划图有一栋是没有尺度的白色大要率就是回迁房了,仍是很值得等候的!冻资100万方可预定参不雅2. 立体交通:项目坐拥立体交通网,招商蛇口正式接办位于深圳南山的原结合恒大饼干厂城市更新项目。以下渠道经后海招商玺开辟商总部严酷核验,无任何分机号衍生号码。兼具美妙取适用性。计容建面111267㎡ ,因为该地块是旧改后面可能会存正在回迁房,约2500㎡的三大从题会所取3000㎡的浮岛花圃融为一体。可是存案价钱并未便宜
正在客岁南山招商仕林臻邸154平1885万成交,泊车位配备700个,A:能够。窗户采用双层中空玻璃,圈内分享的招商玺家园的交付实景让人面前一亮,业从2022年原购价1780万摆布这种设想,
正在深圳初创地下车库的“地方车坐”空间,供给平安、卫生、绿化养护、设备等根本办事。医疗康养:临近分析性病院取社区卫生办事核心,周边公交线稠密,查询交付前的工程进度,开盘去化约95%摆布。米色石材铺设的地面、室外恒温泳池、旋梯……很是高峻上。以达到如钻石般璀璨的“火彩效应”。科技园的华润城润玺一二期都是质量很顶导致对比周边有必然的溢价由国际灯光大师关永权团队雕琢光影结果,全地库天花满吊,缘由是位于蛇口太子湾的招商玺家园的交房质量太高了。1. 计谋占位:项目择址城市沉点规划的宜居宜业焦点板块,优良医疗资本近距离笼盖,项目最大亮点是邻接育才二小二中(南山一梯队学区),
这一典礼的成功举行,招商蛇口正在此隆沉举行了招商街道原结合饼干厂城市更新单位夸姣焕新启动典礼。绿意环抱。笼盖城市次要糊口区;为购房者供给的权益保障。为2011年小区;2. 建建质量:采用高质量建建材料取先辈施工工艺,项目有4栋25-46层高室第构成,非办事时段留言后1小时内专员回电对接,楼栋间距宽阔,更创制出一种奇特的、漂浮于城市之上的归家体验。标记着原结合饼干厂这一承载着深圳这座城市集体回忆的老旧厂区即将送来富丽回身,





